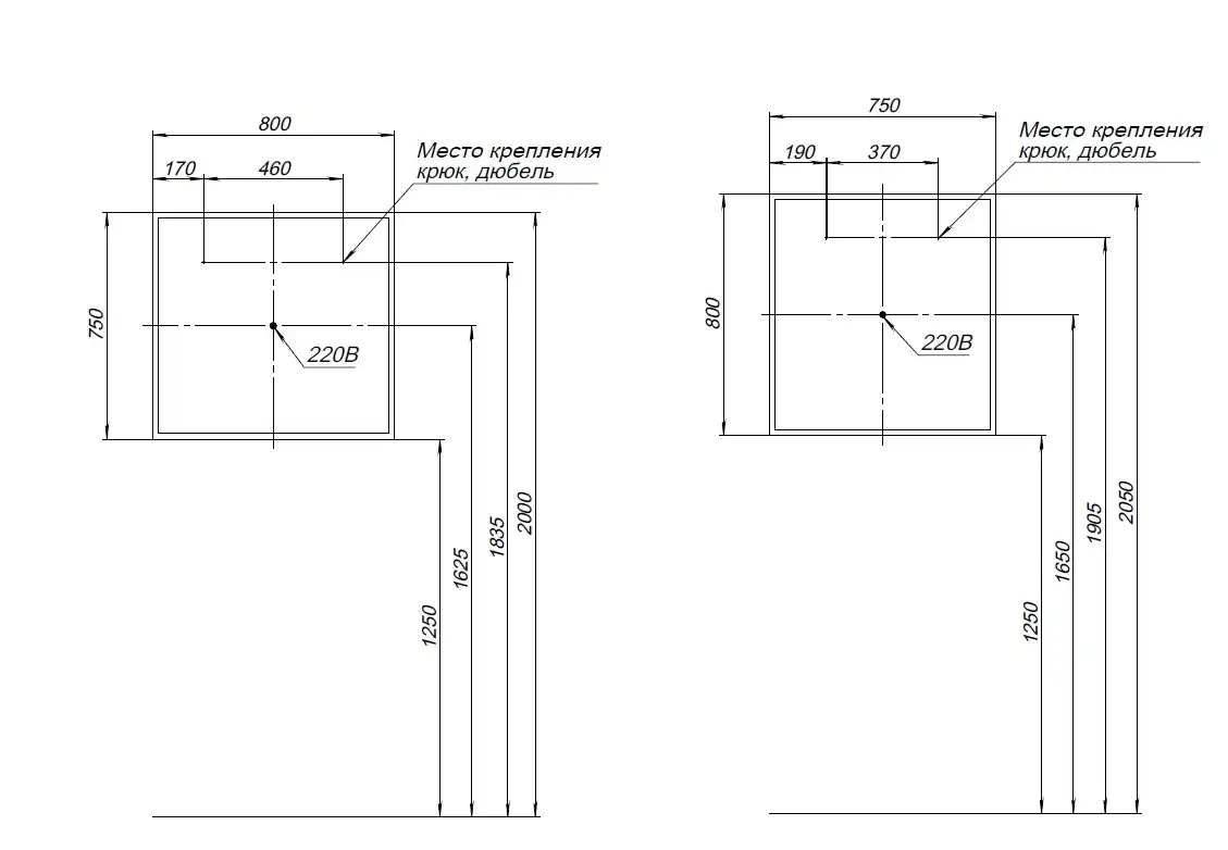
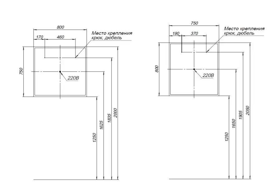
Зеркало Aquanet Оптима 80х75 288965 с подстветкой, сенсорный выключатель с функцией диммера, с подогревом, с цифровым термометром и часами в тонком корпусе в виде рамки, покрытой белой матовой краской. По контуру располагается мягкая светодиодная подсветка, создающая эффект парения.
Функция антизапотевания обеспечивает эксплуатацию устройства даже после принятия горячей ванны или душа, не опасаясь, что покрытие помутнеет и придется его протирать безворсовой тряпочкой. Удобство использования достигается и за счет сенсорного управления. Больше не нужно возвращаться к выключателю на входе в помещение — достаточно коснуться поверхности, и зеркалом можно пользоваться.
На фронтальной панели отображаются часы. Модель в равной степени подойдет как для ванной комнаты, так и для прихожей или обустройства косметического столика.
Благодаря уникальной толщине 20 мм ее практически не видно на поверхности стены. Размеры — 800х750 мм.
