Комплектация
• Инсталляция для унитаза Aquatek Standart 50 INS-0000012
• Унитаз подвесной Aquatek ЛИБРА New AQ0530N-00 с тонким сиденьем soft-close
• Панель смыва и крепеж для рамы приобретаются отдельно
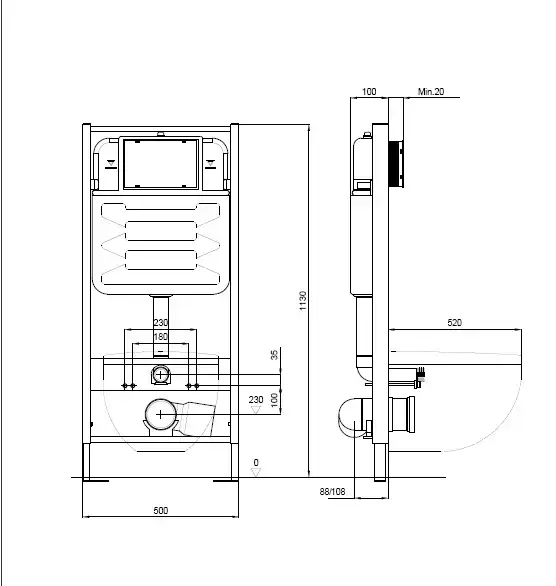
Характеристики инсталляции INS-0000012
• Цельнометаллическая сварная монтажная рама изготовлена из стали 2 мм с антикоррозийным покрытием
• Инсталляция выдерживает вес до 400 кг
• Сливная арматура бачка рассчитана на 200 000 циклов использования
• Цельновыдувной бесшовный смывной бачок с шумоизоляцией и защитой от конденсата, отличается высокой прочностью, соответствует ГОСТ 21485-2016
• Объем смывного бачка 6 л. Толщина бачка 10 см
• Эффективный залповый смыв максимально обеспечивает чистоту керамики
• Быстрое и бесшумное наполнение смывного бачка водой. Максимальный уровень шума до 13 dBa
• Двойной режим слива 3/6 л для снижения расхода воды. Регулируемая настройка (3/6 л, 3/4.5 л)
• Механическая активация смыва
• Ножки с простой регулировкой позволяют установить сантехнику на комфортной высоте
• Совместима со всеми видами подвесных унитазов
• Инсталляция совместима со смывными клавишами Geberit серии Sigma для механической системы смыва
• Уплотнительные кольца и мембраны, изготовленные из силикона, менее подвержены деформации и имеют увеличенный срок службы
• Подходит для легких и несущих стен
• Вес инсталляции 14.2 кг
• Стандартное межосевое расстояние под крепёжные шпильки для керамики — 18/23 см
• Диаметр слива: 9 см
Характеристики унитаза ЛИБРА New AQ0530N-00
• Чаша унитаза безободковая 525*360*290
• Сиденье дюропласт с микролифтом, легкосъемное
• Монтажный комплект
