Системы инсталляций VitrA предлагают решения для всех видов проектов. В любой строительной ситуации стальные рамы VitrA всегда готовы помочь! У них есть решения для установки раковины, писсуара и биде на стены ГВЛ. Стальные рамы обеспечивают легкую установку встроенных смесителей, писсуаров, встроенных систем и сенсоров смыва.
Описание комплектации: Синяя
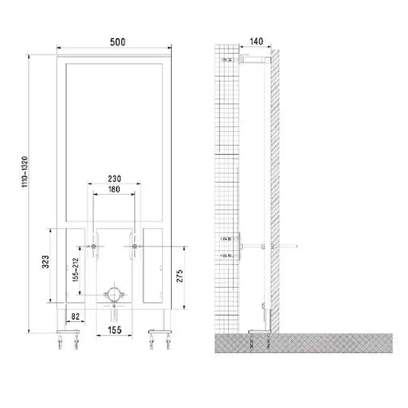
Инсталляция Vitra Frame Frame 880-5800 для биде.
Характеристики:
Цвет: синий.
Материал: оцинкованная сталь толщиной 2 мм.
Оцинкована снаружи и внутри и покрыта краской методом порошкового напыления, что полностью исключает коррозию и гниение.
Габариты (ШхВ): 500x1120 мм.
Устанавливается за гипсокартонной перегородкой и перед капитальной стеной.
Совместима с любыми моделями подвесных биде.
Возможность регулировки ножек рамы по высоте. Даже после укладки напольной плитки и изменения уровня пола есть возможность регулировки высоты рамы.
Направление выпуска: прямое.
Несущая способность: до 400 кг.
Монтаж: в пол и к стене.
В комплекте поставки:
Инсталляция.
Набор крепежей рамы к стене и полу.
Набор крепежей биде к раме.
Инструкция.
