ДУШЕВОЙ УГОЛОК BELBAGNO UNO-195-AH-2
Монтаж: пристенный в угол
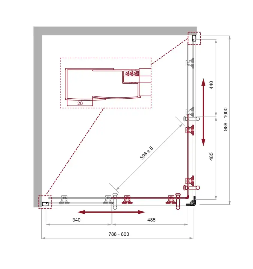
Возможная установка: на поддон, на пол
Высота: 1950 мм
Форма: прямоугольная
Ориентация: универсальная
Конструкция двери: раздвижная
Исполнение полотна двери: прозрачное (C), рифленое PUNTO (P), матовое (M), шиншилла (СН)
Количество секций двери: 2
Толщина полотна двери: 5 мм
Цвет профиля: хром
Материал полотна двери: закаленное стекло, стандарт EN12150-1:2000
Материал профиля: анодированный алюминий, стандарт DIN17611 2007
Регулировка ширины: предусмотрена за счет боковых профилей
Крепления полотна двери: двойные подшипниковые ролики
Дополнительная информация: поддон приобретается отдельно
Ресурс эксплуатации: 15 лет
Гарантия: 3 года с даты продажи, за исключением резинотехнических изделий
-резинотехнические изделия (силиконовые уплотнители, магнитные уплотнители) 1 год с даты продажи
